高低壓配電室電纜溝施工
識圖:暗影部分溝槽是放置電纜用,其上設置活動蓋板。留洞方位是放置配電柜用,下面咱們依照圖集對電纜溝和配電柜溝進行施工,尺度依照上圖進行施工,電纜溝和配電柜溝寬度尺度有兩種600mm和800mm,深度1200mm。溝與溝之間墻體厚度依照圖紙進行施工。下面找了圖集參照進行細部處理施工。

依據實踐施工現場狀況或規劃要求選用鋼筋混凝土電纜溝和素混凝土電纜溝。這兒咱們依照鋼筋混凝土電纜溝施工。這兒留意配電柜厚度,一般取800mm,在施工放置配電柜溝時必定留意應減去250。放置預埋件確保槽鋼焊接和和溝蓋板檐口不被損壞。

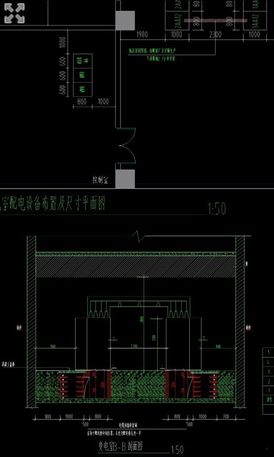
上圖中還有一點咱們可能讀不明白 其實我也沒看懂,C20混凝土柱250*250,這個怎么設置?距離多少?沒說清楚,下面我專門查了一下電氣圖紙。

從此圖可得知,電纜溝與配電柜中心墻體留洞,留置在中心方位,長度為配電柜一半,穿電纜足夠了。
從這個電氣圖紙咱們能夠看到,電纜支架許多,圖會集那幾個預埋件仍是不行,與電氣工程師聯絡究竟要埋置多少或許不埋置后期二次選用化學螺絲進行施工。
這是復合樹脂電纜溝蓋板